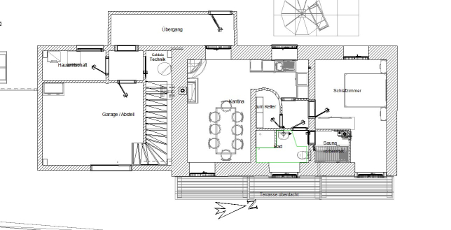
On the ground floor (about 50 square meters) is the bedroom with adjoining bathroom and a prepared sauna area.
Fitted kitchen and the "Kantina" dining room with open fireplace and historic oven to bake bread and pizza.
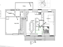
A passage to the extension and stairs to the upper floor.

In the extension (about 30 square meters) you will find the technical center (heating, water supply with emergency water reservoir and pump and electrical distributor.
Utility room with washing machine, shower and toilet
Storage room for cabinets etc.

On the upper floor (60 sqm) is the spacious living room with large balcony doors and panoramic views of nature.
A second bedroom with adjoining bathroom and toilet
A gallery as a library
Access to the roof terrace on the annex.

The property with 38.2 ares is on the district
66050 Celenza sul Trigno (CH) Contrada Strette
adjacent to olive groves and an oak forest.
Tool shed.
Connection to a mountain stream.

The following

renovations

have been carried out in the last years

Ground floor:

Renewal of the floor slab (lowering of the soil, introduction of a gravel layer, insulation against soil, preparation of a storage cellar, drainage in two-circuit technology - toilets and utility water separately.
Re-creation of the interior walls.
Enlargement of the windows and patio doors. (Made to measure by local carpenter) Insulating glazing
Walling with clinker (windows and patio doors)
Renovation of the fireplace and insert fireplace insert
Equipped kitchen
Preparation of a sauna corner.

Upper floor:

Dismantling of the room partitions.
Incorporation of old and processed oak beams as a static replacement for partitions.
Installation of windows and balcony window. (Made to measure by local carpenter) Insulating glazing
Renovation of the floor slab to the ground in reinforced concrete (earthquake resistance)
air conditioner

attic:

Renovation of the existing beam structure.
Partial renewal of mineral coverage.
Application of a 10cm thick insulating layer.
Creating a rear ventilation with roof battens.
New roofing with clay roof tiles
Roof drainage with copper-colored aluminum gutters

Garage: (annex)

Renovation of the exterior walls on a new foundation in Poroton.
Renewal of the ceiling and insulation.

All floors:

Installation of a wall in 35 cm poroton from the ground floor to the attic on a newly created foundation (increase in earthquake resistance for the entire building)
Removal of exterior and interior plaster.
Production of mineral biological joints between the natural stones.
Incorporation of a water-bearing underfloor heating.
New water line installation in central single-pipe technology.
Electrical installation in accordance with European directives (fuse box, FI fault current protection, etc.)
Heating and hot water via GPL gas boiler.
1000 liter gas tank (underground tank at a safe distance to the house)
Creation of 3 bathrooms
Outside with canopies, oriels, retaining walls, natural stone walls, barbecue area, garbage house, fence with hedge, wooden mooring and / or bike or motorcycle parking space.
Fireplace renovation with stainless steel chimney pipe.
Mineral tile coverings.

Particularities:

Alarm system in the EC outer skin protection in OG motion detector.
Outdoor video surveillance system (4 cameras)
Smarthome Control of light and motorized shutters (on the floor) via smartphone
Internet connection via Hyper LAN (Micso Pescara)
Sat antenna Astra and Hotbird
toolshed
Wood-burning stove on the ground floor and first floor
10 sqm water reservoir in the garden

How to find our "Masseria"

Write us a message.